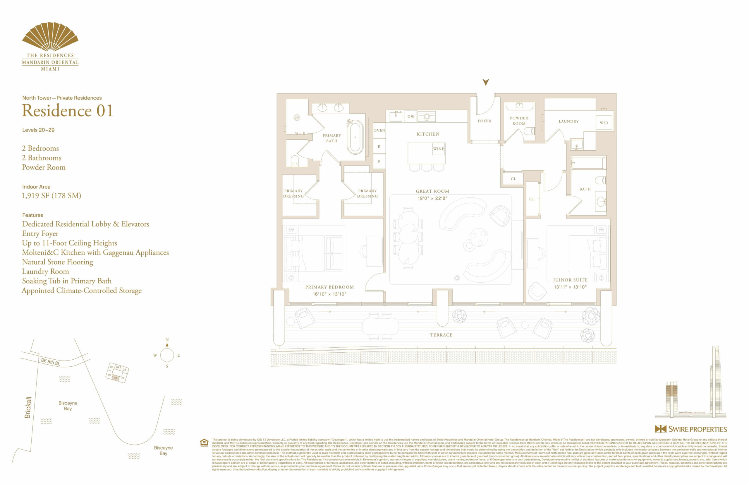
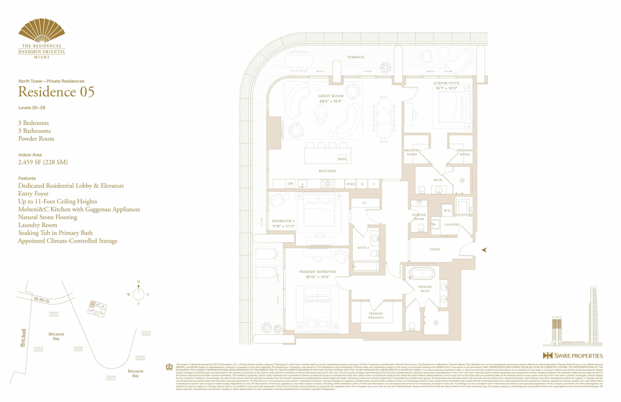
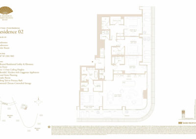
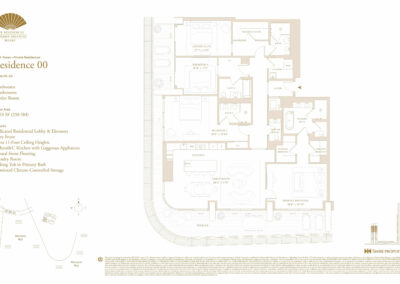
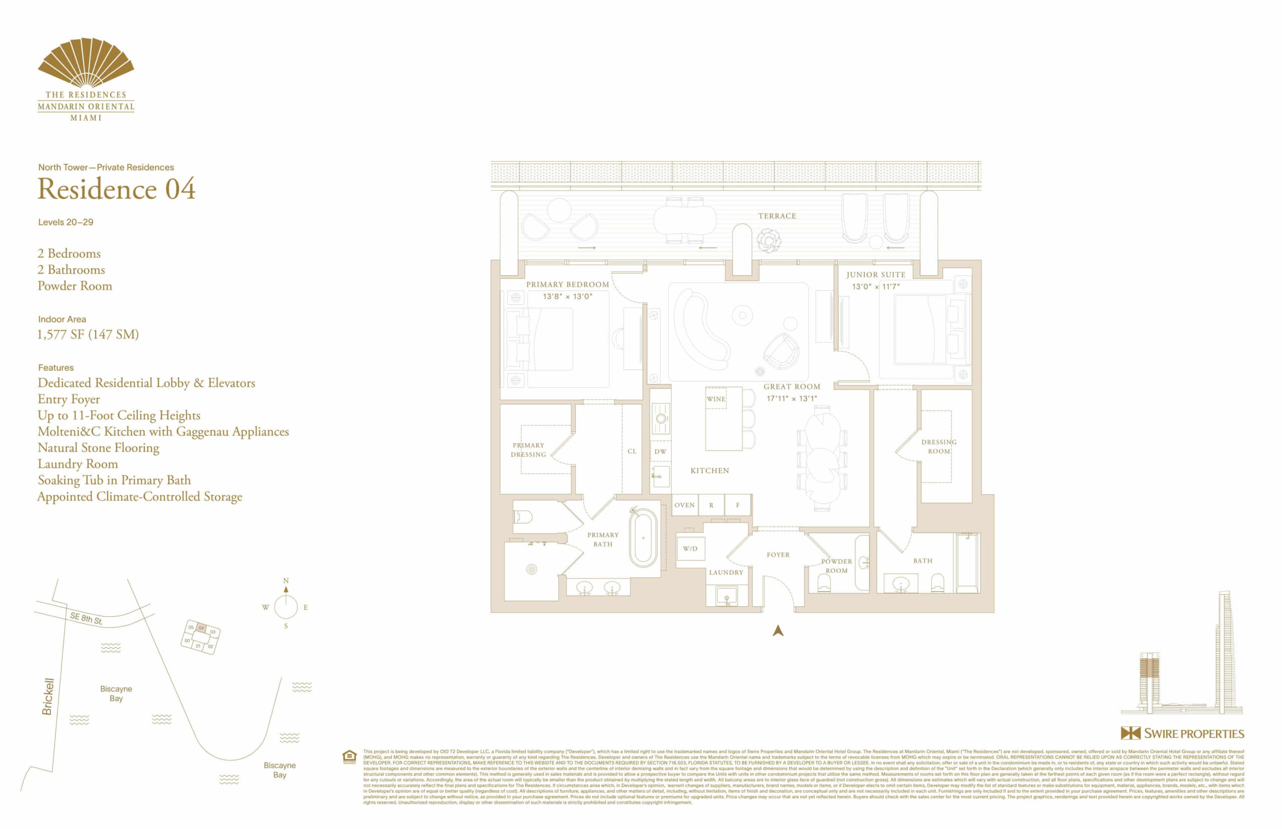
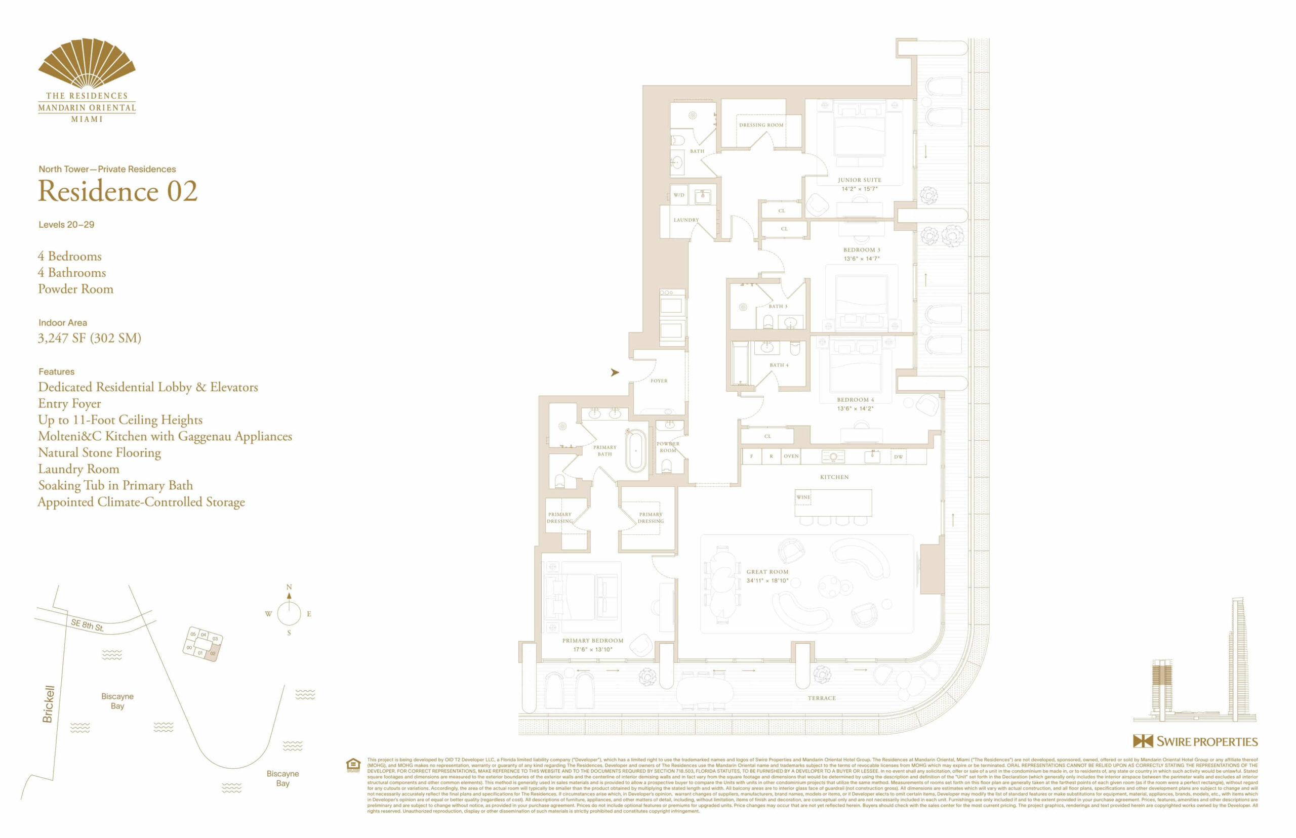
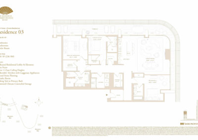
Mandarin Residences Brickell Key
Floor Plan

Translate »